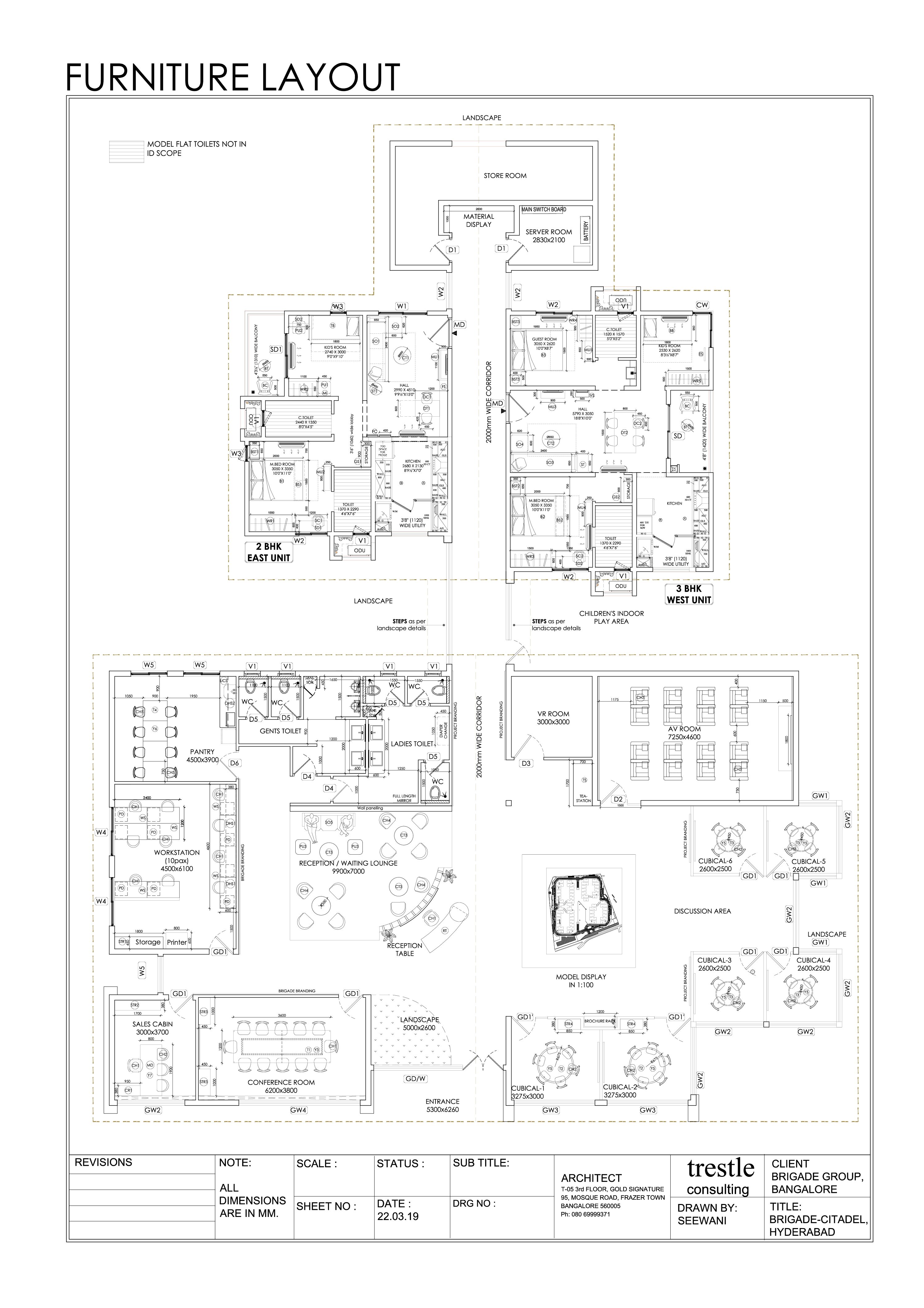
Show Flat and Marketing Office of Brigade Citadel
- Lead: Ar. Prabha
- Client: Brigade Group
- Type: Apartments
- Show Flats: 2BHK and 3BHK
- Floors: G+15
- Units: 1330 Units
- Location: Behind Manyata Tech Park, Bengaluru
- Status: Ongoing
Client brief- Architecturally the project is designed for each home to maximize space while inviting in abundant natural light and ventilation, thus creating those immaculate spaces that virtually breathe. This concept has been carried out and adopted for the show flats interiors too. The furniture and interiors are done to cater for contemporary Indian lifestyle while maximizing use of each space.
Review
We got our interiors of our villament done from Trestle Consulting..from the day go to the end of the project we had no glitches.. very happy with the outcome.. work of the entire team is commendable..Special mention about Architect Prabha whose work speaks for itself.. Thanks for delivering what was promised!!
Deepa and Mahesh Shirur



