Mr. Percy Louis
- Lead: Architect Prabha
- Team: Architect Harshini & Savitha
- Type: Commercial
- Built Area: 25000 Sq Ft
- Site Area: 10000 Sq Ftt
- Cost: 7.5crore
- Location: Vittal Mallya Rd., Bengaluru
- Year: 2016
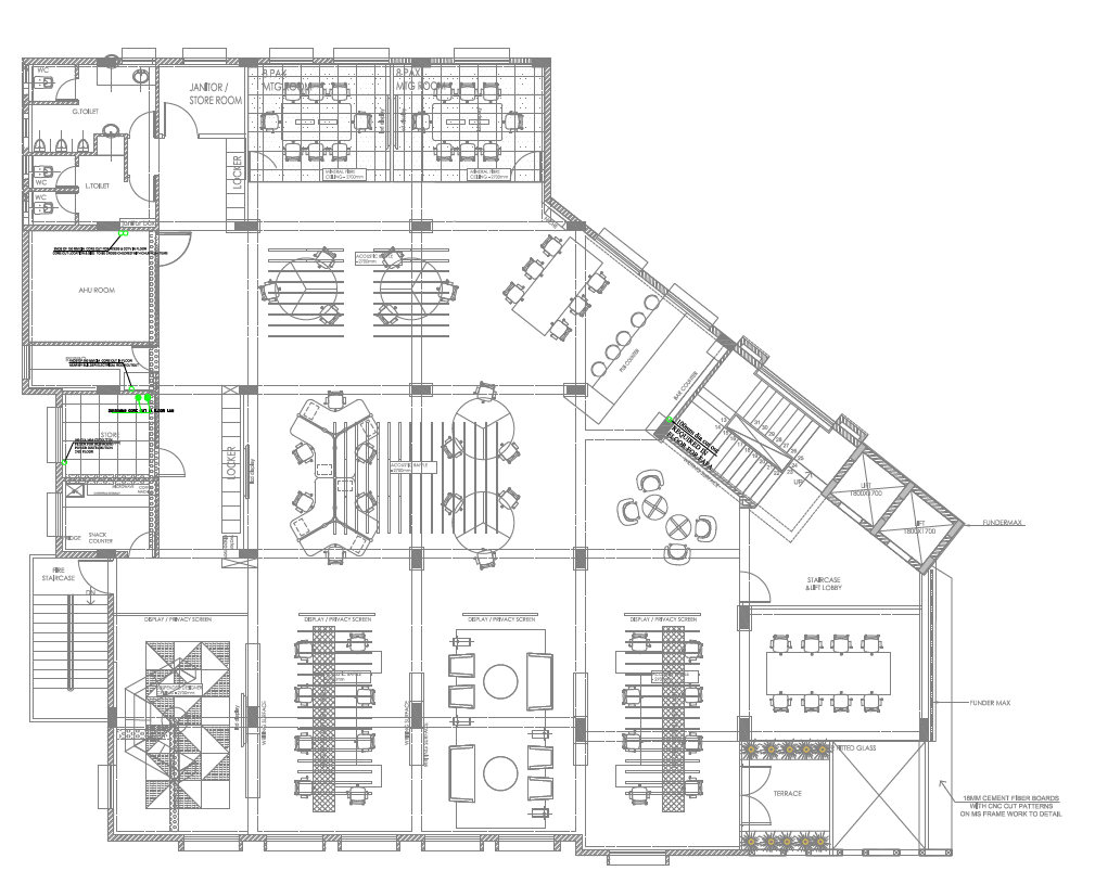
The brief for poject was to design a office building/commercial premises to house single office /commercial establishment. Main criterias were following-
1. to provide ample parking as most of the commercial buildings were not getting tenants due to lack of ample parking.32 car parks with stacked car parking system from Klaus.
2. to provide north light as day light source ,south and west lights were cut down to lower AC cost.
3. Site had substantial underground water ,hence network of sub surface drainage was created to collect the water into sumps and used for the building.
Building presently occupied by AB Inbev as their research centre.
Review
Dear All,
Having worked for nearly four decades abroad, me and my spouse always wanted to return to India, particurly to Bangalore. We both were born and brought up in Karnataka so the place is not alien to us.
We had a plot at Vittal Mallya road acquired by us also decades ago which I thought of doing self-development at the crazy age of sixty-seven!. We were introduced to Prabha Singh and Jitten Jhangani an husband wife architecture firm. I still recall the first meeting we had with the duo and since then we have never looked back.
We had a difficult site to start with equally difficult neighbors as well the officials. I requested Prabha design must be like that of “Google” and not “LEGO” type in concept. Prabha, as architect cautioned me but took up the challenge. Her design concept was 200% in sink with mine and despite all the challenges as well as setbacks she put on Bangalore map the most unique building. It was not massive, just two floors with basement elevated parking. So much so, even before completing eighty per cent it was picked up by a multi-national scout company as their “Global Research” outfit They have been our clients for almost a decade. It is an open concept plan and paperless in the true sense. So much so, many other entrepreneurs do come to visit the place just to get an idea.
Concluding, Louis Associates as our registered is known will recommend “trestle” as the architectural firm is known to all who wish to indulge in any such ventures.
Having worked for nearly four decades abroad, me and my spouse always wanted to return to India, particurly to Bangalore. We both were born and brought up in Karnataka so the place is not alien to us.
We had a plot at Vittal Mallya road acquired by us also decades ago which I thought of doing self-development at the crazy age of sixty-seven!. We were introduced to Prabha Singh and Jitten Jhangani an husband wife architecture firm. I still recall the first meeting we had with the duo and since then we have never looked back.
We had a difficult site to start with equally difficult neighbors as well the officials. I requested Prabha design must be like that of “Google” and not “LEGO” type in concept. Prabha, as architect cautioned me but took up the challenge. Her design concept was 200% in sink with mine and despite all the challenges as well as setbacks she put on Bangalore map the most unique building. It was not massive, just two floors with basement elevated parking. So much so, even before completing eighty per cent it was picked up by a multi-national scout company as their “Global Research” outfit They have been our clients for almost a decade. It is an open concept plan and paperless in the true sense. So much so, many other entrepreneurs do come to visit the place just to get an idea.
Concluding, Louis Associates as our registered is known will recommend “trestle” as the architectural firm is known to all who wish to indulge in any such ventures.
Percy Louis


